首页/文章/ 详情

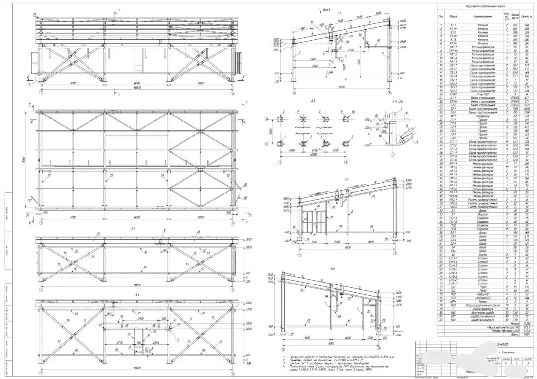
【工程机械】18x9 H5.5m建筑钢框架3D数模图纸 Solidworks设计 附平面工程图

1月前浏览44

【工程机械】18x9 H5.5m建筑钢框架3D数模图纸

Solidworks设计 附平面工程图

部分图片来源及下载此模型的网址如下:

https://grabcad.com/library/steel-frame-of-building-18x9-h-5-5m-1

注意事项:本文仅是图片,仅供欣赏。如需共享,请遵守本公 众号首页“更多图纸”中的“免责声明”。


来源:机械图纸狗

附件

免费附件.txt
建筑SolidWorks工程图
著作权归作者所有,欢迎分享,未经许可,不得转载
首次发布时间:2025-09-09
最近编辑:1月前
机械狗社区David
签名征集中
获赞 157粉丝 65文章 4251课程 0
点赞
收藏
作者推荐

【非标数模】气缸涡流检测机3D数模图纸 Solidworks20设计

【非标数模】气缸涡流检测机3D数模图纸 Solidworks20设计来源:互联网注意事项:本文仅是图片集,仅供欣赏。如需共享,请遵守本公 众号首页“更多图纸”中的“免责声明”。来源:机械图纸狗

未登录
还没有评论
课程
培训
服务
行家
VIP会员 学习计划 福利任务
下载APP
联系我们
帮助与反馈