关键词
钢板剪力墙;屈曲;ABAQUS;滞回;论文复现
模拟背景
钢板剪力墙是常见的承载耗能部件,由于其厚度通常较薄,典型的变形特征为平面外的剪切失稳
学者通常关注其耗能性能,尤其是研究其在剪切多波屈曲下的耗能能力
常用的研究其抗震性能的方式为四铰接边界滞回加载,其滞回曲线通常捏缩
复现内容
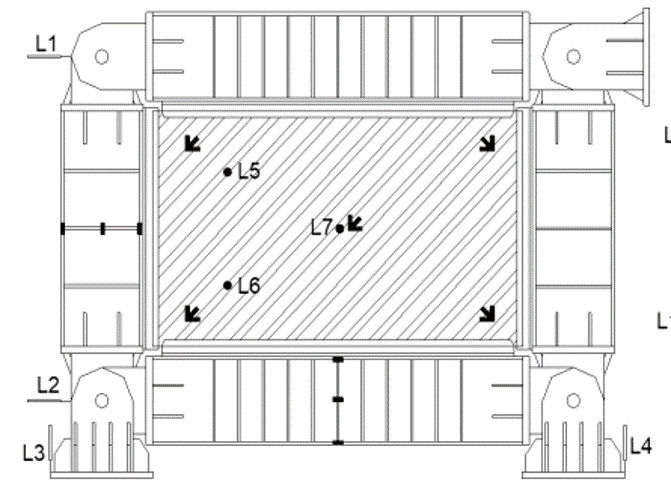
本期案例带来了哈工大学位论文中的试验复现,结构形式为典型的钢板剪力墙,其中框架梁柱采用铰接连接,并在顶部施加水平往复荷载。最终钢板发生剪切的多波屈曲,同时角点处钢板破坏。


钢板剪力墙滞回试件
复现难点
类似的钢板剪力墙滞回复现难点有:
1、四铰接边界在精细化有限元中应如何考虑
2、试验中钢板剪力墙特有的捏缩滞回曲线如何复现
3、有限元初始刚度比试验大很多如何解决
4、破坏形态与下降段如何调试与试验吻合
滞回曲线对比
模拟的滞回曲线与试验吻合,包括合适的初始刚度和标志试件破坏的下降段。同时表现出钢板剪力墙特有的捏缩现象。

滞回曲线对比
破坏形态对比
有限元破坏形态与试验结果一致,表现出现多波屈曲、最终在角点位置发生钢板破坏。


破坏形态对比
结语
除了本期案例中的典型钢板剪力墙外,各学者还热衷于创新防屈曲约束的钢板剪力墙。实际上这也与钢板的破坏形式相关。本期案例对连接方式、边界条件、初始刚度调试、下降段调试等关键细节进行讲解。可为类似钢板剪力墙或防屈曲约束钢板剪力墙的精细化模拟提供参考。